£825 per month

3 bed flat to rent in Addycombe Terrace, Heaton, Newcastle, NE6

Shortlist

Key features

  • On-Street Parking
  • Spacious Three Bedroom Upper Flat
  • Fitted Kitchen & Bathroom
  • Private Enclosed Rear Yard

Video

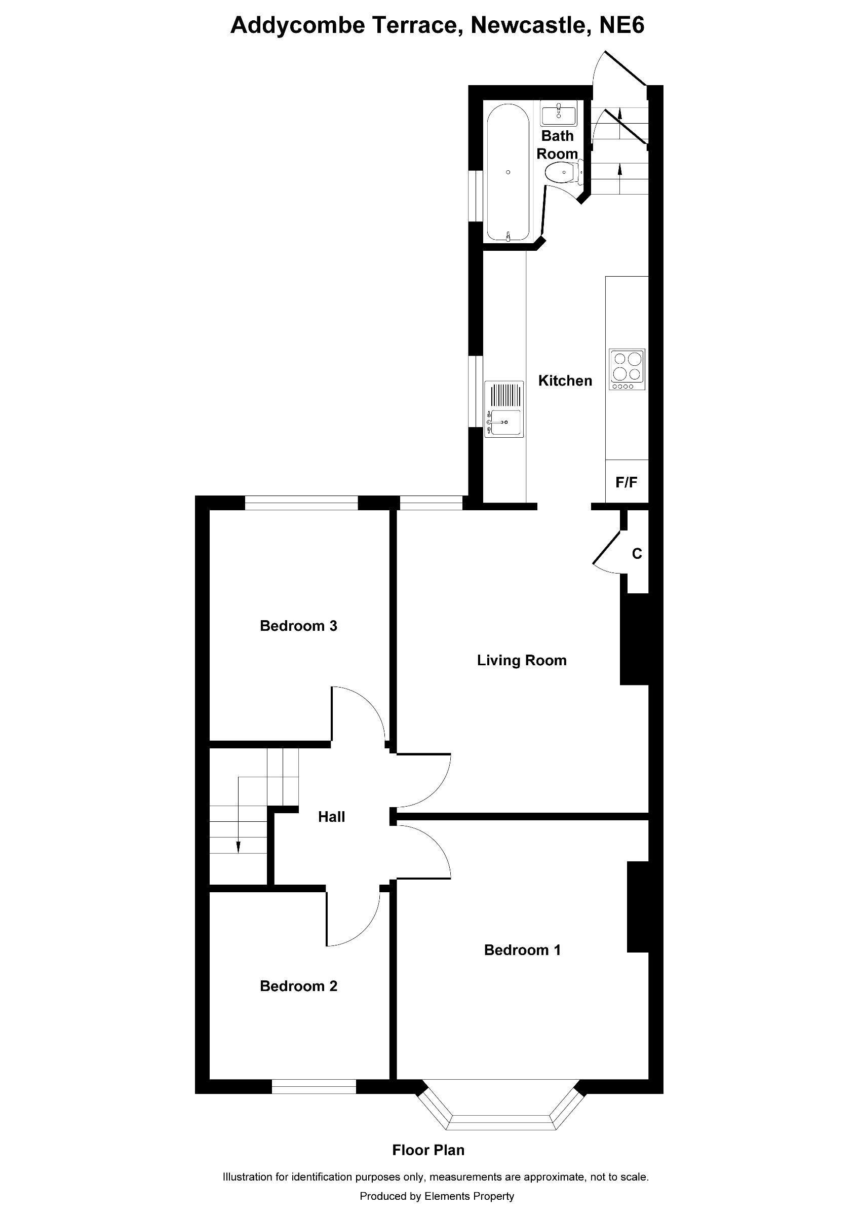
Welcome to Addycombe Terrace. This well-presented three-bedroom flat is located in Newcastle upon Tyne, NE6, offering spacious accommodation and a practical layout ideal for comfortable living.

Spacious Living Area:
The property benefits from a generous living room featuring a charming fireplace, creating a warm and inviting focal point to the space.

Three Bedrooms:
The flat comprises two well-proportioned double bedrooms and one single bedroom, providing flexible accommodation suitable for a couple, small family, or those requiring a home office.

Excellent Location:
Situated in a popular residential area, the property benefits from close proximity to Newcastle City Centre, offering easy access to shops, restaurants, nightlife, and excellent transport links.

As you enter the flat, you are welcomed into a spacious living area. Moving through the property, you will find the three bedrooms, a modern kitchen fitted with an integrated oven, hob, extractor fan, and fridge freezer, along with the family bathroom, all well laid out for practical living.

Externally, the property benefits from a private yard to the rear, perfect for enjoying outdoor space, entertaining guests, or relaxing during warmer months.


Located in the NE6 area of Newcastle upon Tyne, the property is close to local amenities, schools, and transport links, making it a convenient and well-connected place to call home.

Council Tax Band: A (Newcastle City Council)
Deposit: £825
Holding Deposit: £190.38
Parking options: On Street
Garden details: Private Garden
Electricity supply: Mains
Heating: Gas Mains
Water supply: Mains
Sewerage: Mains


Download brochure

7 Property images

3 bed flat to rent in Addycombe Terrace, Newcastle upon Tyne 0
3 bed flat to rent in Addycombe Terrace, Newcastle upon Tyne 1
3 bed flat to rent in Addycombe Terrace, Newcastle upon Tyne 2
3 bed flat to rent in Addycombe Terrace, Newcastle upon Tyne 3
3 bed flat to rent in Addycombe Terrace, Newcastle upon Tyne 4
3 bed flat to rent in Addycombe Terrace, Newcastle upon Tyne 5
3 bed flat to rent in Addycombe Terrace, Newcastle upon Tyne 6

Further details

  • Tenant Information
  • New listing: launched in the last 10 days
  • Status: Available
  • Council tax band: A
  • Availability: Now
  • Deposit: £825
  • Un-Furnished
  • Parking spaces: On Street
  • Outside spaces: Private Garden
  • Reference: 524777

Location

Similar priced properties