Offers over £89,950

2 bed ground floor flat for sale in Hyde Park Street, Gateshead (ref: RS0419)

Shortlist

Key features

  • Investment Potential
  • Great EPC Rating of C
  • Close to Newcastle City Centre
  • Close to Metrocentre
  • Newly Painted
  • Ample Transport Links
  • Enclosed Rear Yard

Video

A well-presented two-bedroom ground-floor flat, offering excellent value for both first-time buyers and investors, set in a convenient and well-connected location.

Ideal First Home or Investment Potential:

Perfect for first-time buyers looking to step onto the property ladder, or investors seeking a ready-to-let addition to their portfolio. The property could potentially achieve around £650 per month in rent, representing an approximate yield of 9% (subject to market conditions), making it an attractive buy-to-let opportunity.

Excellent Location & Connectivity:

Ideally positioned for easy access to key amenities and transport links. The property is just an 8-minute drive to the Metrocentre, 11 minutes to Eldon Square in Newcastle, and approximately 8 minutes to Queen Elizabeth Hospital. Dunston Train Station is only a 6-minute drive away, with Gateshead Stadium Metro Station around 7 minutes by car. For green space and leisure, Saltwell Park is just a 12-minute walk or 3-minute drive, perfect for weekend strolls and outdoor time.

EPC Rating C:

With an EPC rating of C, the property offers good energy efficiency, helping to keep running costs lower and appealing to both homeowners and tenants alike.

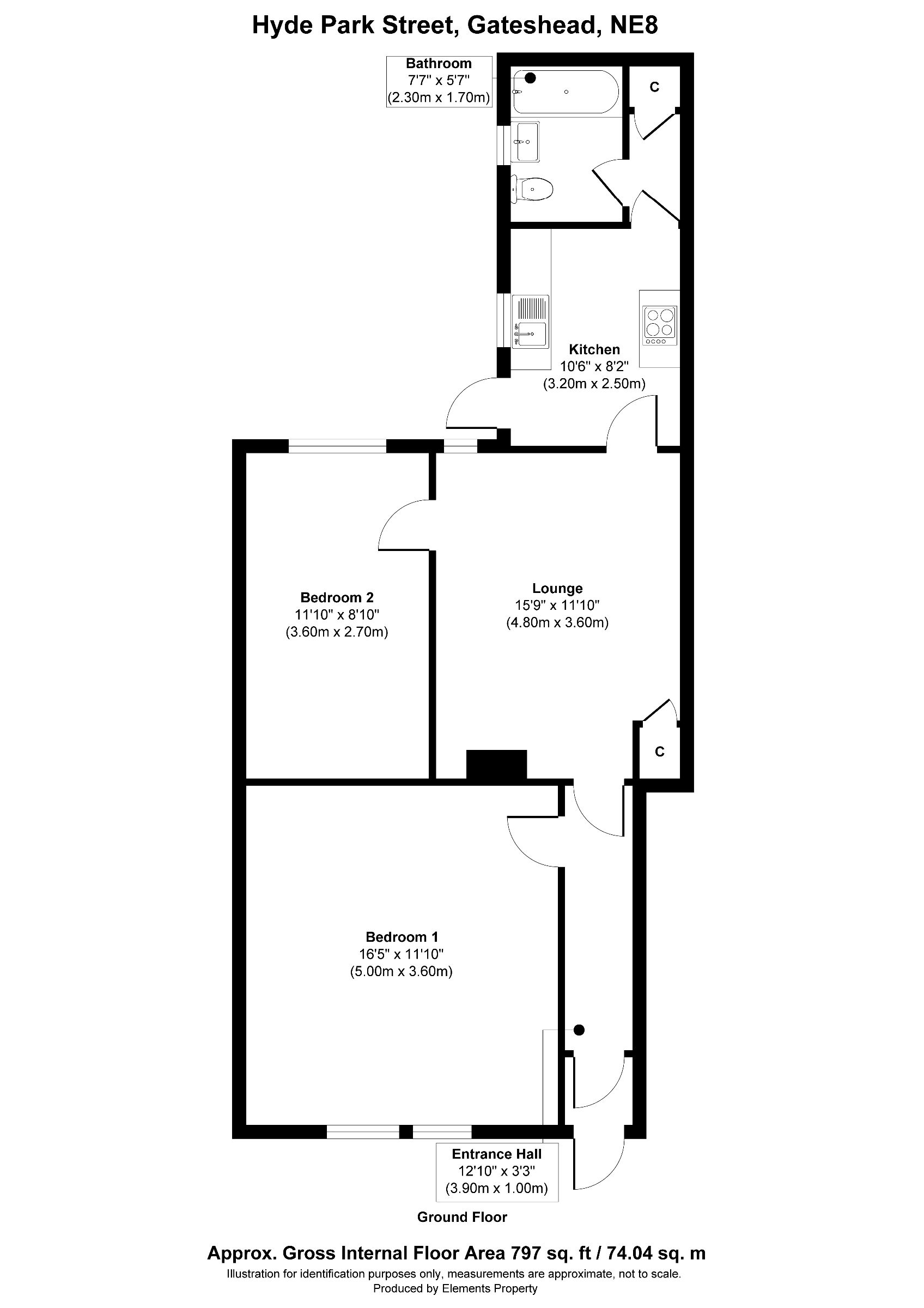
Upon entering the property, the main double bedroom is situated to the left. This is a well-proportioned, carpeted room offering comfortable space for furnishings.

Moving down the hallway, you enter the living room, which benefits from newly fitted laminate wood flooring and a fresh, neutral décor, in keeping with the rest of the property which has been painted throughout.

Further along is the second bedroom, a carpeted single room ideal as a guest room, office, or nursery.

To the rear of the property is the kitchen, which has recently been refurbished (with the exception of the oven and hob). It offers a modern feel with updated finishes.

Leading through to the bathroom, you will find tiled walls and a fitted bath with a detachable shower head.

Externally, the property benefits from a enclosed rear yard.

Hyde Park is well placed within NE8, offering convenient access to local shops, schools, and everyday amenities. With strong transport links nearby, including rail and Metro connections, as well as easy road access into Newcastle city centre and surrounding areas, this location is well suited to commuters and families alike. The close proximity to Saltwell Park also provides a fantastic outdoor space right on your doorstep.

Council Tax Band: A (Gateshead Council)
Tenure: Leasehold (999 years)
Ground Rent: £0 per year
Years remaining 965 years
Parking options: On Street
Electricity supply: Mains
Heating: Gas Mains
Water supply: Mains
Sewerage: Mains


Download brochure

Stamp duty due

Based on a sale price of £89,950 the total amount of stamp duty payable will be:

*

Last updated: The calculator has been updated to reflect changes in stamp duty following the Mini Budget on 23rd September 2022.

* This value is based on the standard rate and not applicable to first-time buyers or buy-to-let / second home buyers.

8 Property images

2 bed ground floor flat for sale in Hyde Park Street, Gateshead 0
2 bed ground floor flat for sale in Hyde Park Street, Gateshead 1
2 bed ground floor flat for sale in Hyde Park Street, Gateshead 2
2 bed ground floor flat for sale in Hyde Park Street, Gateshead 3
2 bed ground floor flat for sale in Hyde Park Street, Gateshead 4
2 bed ground floor flat for sale in Hyde Park Street, Gateshead 5
2 bed ground floor flat for sale in Hyde Park Street, Gateshead 6
2 bed ground floor flat for sale in Hyde Park Street, Gateshead 7

Further details

  • New Listing: launched in the last 10 days
  • Status: Available
  • Council tax band: A
  • Tenure: Leasehold
  • Parking spaces: On Street
  • Reference: 702807

Location

Similar priced properties

2 bed flat for sale in Holly Avenue, Wallsend, NE28 Video walkthrough available
Offers over £86,950
2 bed flat for sale in Holly Avenue, Wallsend, NE28
2 1 1

Located in Holly Avenue, Wallsend (NE28), this well-presented two-bedroom...
4 bed maisonette for sale in Kayll Road, Sunderland, SR4
Offers over £88,000
4 bed maisonette for sale in Kayll Road, Sunderland, SR4
4 1 1

Welcome to Kayll Road. This property is a four-bedroom, one-bathroom upper...
2 bed flat for sale in Park Road, Sunderland, SR2 Video walkthrough available
£89,950
2 bed flat for sale in Park Road, Sunderland, SR2
2 1 1

Welcome to the middle-floor flat on Park Road, a newly refurbished flat perfect...