Sold STC
£62,000

2 bed flat for sale in Ravensworth Street, Bedlington (ref: RS0393)

Shortlist

Key features

  • Investment Potential
  • Rental Demand
  • No Chain
  • Close to Blyth Beach & Harbour
  • Ample Transport Links
  • EPC Rating C

Video

This well-presented two-bedroom upper-floor flat on Ravensworth Street is an ideal choice for first-time buyers or investors alike.

Investment Potential:

With its location and features, this property presents an appealing investment prospect. It offers the potential for a strong, long-term rental yield.

Prime Location Close to Blyth Town Centre:

This property enjoys a prime location with easy access to essential amenities as well as being only a 10-minute drive to Blyth Town Centre. It is also only a two minute drive to Bedlington Railway Station making daily life convenient and hassle-free. Additionally, the coastline at Blyth and nearby country parks are only a short drive away, offering both convenience and leisure on your doorstep.

Energy Efficient Living - EPC Rated C:

Enjoy lower energy bills and improved efficiency with this property's excellent EPC rating of C, offering both environmental benefits and potential savings for the homeowner or tenant.

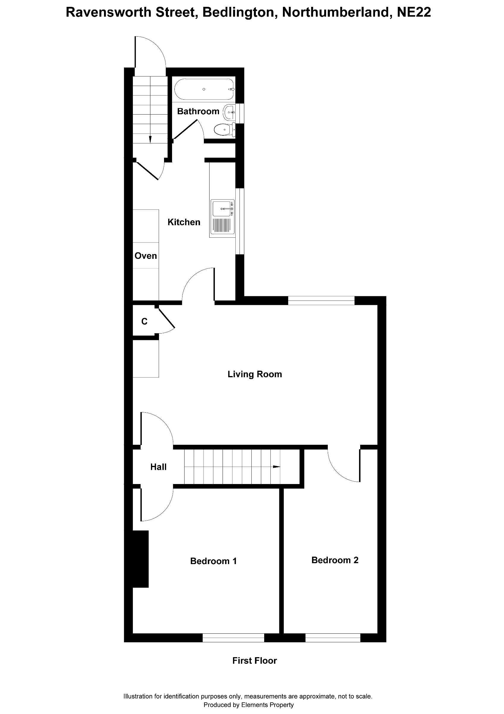
As you head upstairs, you are greeted by a bright living room with laminate wood flooring and neutral white walls, creating a modern and versatile space. The galley kitchen is fitted with sleek white cabinets, stylish wooden worktops, and offers space for white goods, with a cooker included.

The property benefits from two bedrooms: a spacious double with a feature wall, and a single bedroom, both finished with cosy carpets. The bathroom includes a fitted bath with a detachable shower head, making it practical for everyday use.

Externally, the property offers access to a shared rear yard, which also provides the option for off-street parking.

Situated in Bedlington, Ravensworth Street is close to Bedlington town centre, offering a great selection of local shops, supermarkets, cafes, and takeaways. For commuters, the property is a two-minute walk to Bedlington Railway Station for easy travel. There are further transport links via bus routes and easy access to the A189 Spine Road, connecting you to Newcastle and the wider region in under 25 minutes.

With its convenient layout, great location, and excellent potential, this flat is a fantastic opportunity to step onto the property ladder or secure a reliable buy-to-let investment


Council Tax Band: A (Northumberland Council)
Tenure: Leasehold (999 years)
5 Ravensworth Street, 50% share of the freehold and a 999 year lease.

Parking options: On Street
Electricity supply: Mains
Heating: Gas Mains
Water supply: Mains
Sewerage: Mains


Download brochure

Stamp duty due

Based on a sale price of £62,000 the total amount of stamp duty payable will be:

*

Last updated: The calculator has been updated to reflect changes in stamp duty following the Mini Budget on 23rd September 2022.

* This value is based on the standard rate and not applicable to first-time buyers or buy-to-let / second home buyers.

7 Property images

2 bed flat for sale in Ravensworth Street, Bedlington 0
2 bed flat for sale in Ravensworth Street, Bedlington 1
2 bed flat for sale in Ravensworth Street, Bedlington 2
2 bed flat for sale in Ravensworth Street, Bedlington 3
2 bed flat for sale in Ravensworth Street, Bedlington 4
2 bed flat for sale in Ravensworth Street, Bedlington 5
2 bed flat for sale in Ravensworth Street, Bedlington 6

Further details

  • Status: Sold STC
  • Council tax band: A
  • Tenure: Leasehold
  • Parking spaces: On Street
  • Reference: 681310

Location

Similar priced properties

3 bed cottage for sale in Tower Street, Sunderland, SR2
Sold STC
£53,000
3 bed cottage for sale in Tower Street, Sunderland, SR2
3 1 1

Welcome to this Rental Investment property on Tower Street, Sunderland. A...
2 bed terraced house for sale in Finchale Close, Sunderland, SR2 Video walkthrough available
Offers over £60,000
2 bed terraced house for sale in Finchale Close, Sunderland, SR2
2 1 1

A fantastic opportunity to acquire this two-bedroom terraced house, offering...
3 bed terraced house for sale in Aire Street, Middlesbrough, TS1
Sold STC
Video walkthrough available
£65,000
3 bed terraced house for sale in Aire Street, Middlesbrough, TS1
3 1 2

This three-bedroom terraced home on Aire Street offers fantastic potential for...